DOM Z45AD
DANE TECHNICZNE
DOM PARTEROWY Z PODDASZEM
POWIERZCHNIA UŻYTKOWA / NETTO
POWIERZCHNIA GARAŻU
POWIERZCHNIA ZABUDOWY
KUBATURA
Powierzchnia użytkowa liczona zgodnie z rozporządzeniem ministra z dnia 25 kwietnia 2012
WYSOKOŚĆ
KĄT NACHYLENIA DACHU
POWIERZCHNIA DACHU
LICZBA POKOI
105,6 / 118,8 m2
-
75,2 m2
306 m3
8,53 m
45 st.
148,36 m2
4
DOM Z45AD
PARTER 52 m2
SIEŃ
HOL
KUCHNIA
SALON + JADALNIA
ŁAZIENKA
2,7 m2
4,2 m2
10,3 m2
38,2 m2
4,9 m2
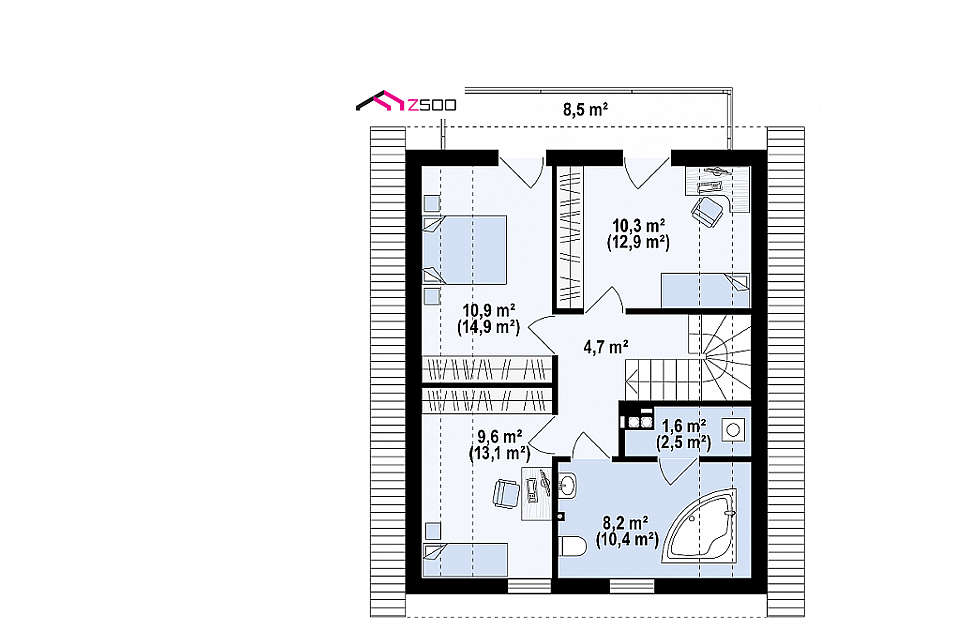
DOM Z45AD
PODDASZE 45,3 / 58,4 m2
HOL
POKÓJ
POKÓJ
POKÓJ
ŁAZIENKA
PRALNIA
4,7 m2
10,3 m2
10,9 m2
9,6 m2
8,3 m3
1,6 m2
DOM Z45AD
MINIMALNE WYMIARY DZIAŁKI
SZEROKOŚĆ
DŁUGOŚĆ
WYMIARY ELEWACJI FRONTOWEJ
13,82 m
17,62 m
7,82 m
WYJAŚNIENIE POJĘĆ
Powierzchnia użytkowa
Powierzchnia wszystkich pomieszczeń z włączeniem pomieszczenia technicznego, garażu, pomieszczenia gospodarczego, strychu. Przy obmiarach nie uwzględnia się tyków i okładzin ściennych.
Powierzchnia netto
Jest to powierzchnia wszystkich pomieszczeń budynku mierzona w poziomie podłogi z uwzględnieniem tynków i okładzin ścian. Nie pomniejsza się powierzchni pomieszczeń o zmiennej wysokości – np. na poddaszu. Prościej mówiąc to tak jakby rozłożyć we wszystkich pomieszczeniach wykładzinę.
Powierzchnia zabudowy
Jest to powierzchnia obrysu ścian zewnętrznych budynku (parteru). Do powierzchni zabudowy nie wlicza się: podziemnych części budynku, pochylni samochodowych, schodów zewnętrznych, ganków, daszków nad wejściem, galerii oraz wszystkich nadwieszeń kondygnacji. Uwzględnia się np. ogrody zimowe lub inne elementy przybudowane.
Kubatura:
Objętość pomieszczeń, czyli powierzchnia pomieszczeń pomnożona przez wysokość danej kondygnacji. Do obliczenia kubatury przyjęliśmy wysokość liczoną od podłogi do spodu stropu lub do spodu stropodachu.
Liczna pokoiLiczba pokoi z wyłączeniem pomieszczeń gospodarczych i technicznych.
Powierzchnia dachu
Łączna powierzchnia dachu z wyłączeniem okien dachowych.
DOMY Z PODDASZEM
W TECHNOLOGII SZKIELETOWEJ
WARSKOP
Przedsiębiorstwo Budowlane
Janusz Stokłosa
02-777 Warszawa
ul. Strzeleckiego 2/18
www.warskop.pl
(22) 643 38 14
501 827 318
506 585 855
NIP: 5210321397
REGON: 012038594
BUDUJEMY
DOMY KANADYJSKIE
W TECHNOLOGII SZKIELETOWEJ
WARSKOP.PL