DOM ALABASTER
DANE TECHNICZNE
DOM PARTEROWY Z PODDASZEM
POWIERZCHNIA UŻYTKOWA
POWIERZCHNIA GARAŻU
POWIERZCHNIA ZABUDOWY
KUBATURA
Powierzchnia użytkowa liczona zgodnie z rozporządzeniem ministra z dnia 25 kwietnia 2012
WYSOKOŚĆ
KĄT NACHYLENIA DACHU
POWIERZCHNIA DACHU
LICZBA POKOI
100 m2
-
91,35 m2
547,35 m3
8,08 m
40 st.
158,16 m2
4
DOM ALABASTER
PARTER 43,59 m2
WIATROŁAP
HALL
ŁAZIENKA
KUCHNIA
POKÓJ DZIENNY
KOTŁOWNIA
GARAŻ
3,29 m2
5,52 m2
2,88 m2
9,50 m2
22,40 m2
5,36 m2
17,32
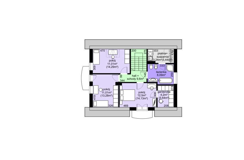
DOM ALABASTER
PODDASZE
HALL + SCHODY
ŁAZIENKA
PRALNIA + SUSZARNIA
GARDEROBA
POKÓJ
POKÓJ
POKÓJ
w nawiasie podano powierzchnię pomieszczenia netto
9,60 m2 (9,60 m2)
8.09 m2 (8.09 m2)
3,24 m2 (5,44 m2)
4,20 m2 (5,64 m2)
12,50 m2 (14,13 m2)
11,01 m2 (13,28 m2)
11,01 m2 (11,01 m2)
DOM ALABASTER
MINIMALNE WYMIARY DZIAŁKI
SZEROKOŚĆ
DŁUGOŚĆ
WYMIARY ELEWACJI FRONTOWEJ
19,01 m
16,02 m
11,01m
WYJAŚNIENIE POJĘĆ
Powierzchnia użytkowa
Powierzchnia wszystkich pomieszczeń z włączeniem pomieszczenia technicznego, garażu, pomieszczenia gospodarczego, strychu. Przy obmiarach nie uwzględnia się tyków i okładzin ściennych.
Powierzchnia netto
Jest to powierzchnia wszystkich pomieszczeń budynku mierzona w poziomie podłogi z uwzględnieniem tynków i okładzin ścian. Nie pomniejsza się powierzchni pomieszczeń o zmiennej wysokości – np. na poddaszu. Prościej mówiąc to tak jakby rozłożyć we wszystkich pomieszczeniach wykładzinę.
Powierzchnia zabudowy
Jest to powierzchnia obrysu ścian zewnętrznych budynku (parteru). Do powierzchni zabudowy nie wlicza się: podziemnych części budynku, pochylni samochodowych, schodów zewnętrznych, ganków, daszków nad wejściem, galerii oraz wszystkich nadwieszeń kondygnacji. Uwzględnia się np. ogrody zimowe lub inne elementy przybudowane.
Kubatura:
Objętość pomieszczeń, czyli powierzchnia pomieszczeń pomnożona przez wysokość danej kondygnacji. Do obliczenia kubatury przyjęliśmy wysokość liczoną od podłogi do spodu stropu lub do spodu stropodachu.
Liczna pokoiLiczba pokoi z wyłączeniem pomieszczeń gospodarczych i technicznych.
Powierzchnia dachu
Łączna powierzchnia dachu z wyłączeniem okien dachowych.
 
           
           
           
           
           
           
           
           
           
            
            
             
             
             
             
            
            
           DOMY Z PODDASZEM
W TECHNOLOGII SZKIELETOWEJ
WARSKOP
Przedsiębiorstwo Budowlane
Janusz Stokłosa
02-777 Warszawa
ul. Strzeleckiego 2/18
www.warskop.pl
(22) 643 38 14
501 827 318
506 585 855
NIP: 5210321397
REGON: 012038594
BUDUJEMY
DOMY KANADYJSKIE
W TECHNOLOGII SZKIELETOWEJ
WARSKOP.PL
 
    
    
    
    
   