DOM Z12
DANE TECHNICZNE
DOM PARTEROWY
POWIERZCHNIA UŻYTKOWA / NETTO
POWIERZCHNIA GARAŻU
POWIERZCHNIA ZABUDOWY
KUBATURA
Powierzchnia użytkowa liczona zgodnie z rozporządzeniem ministra z dnia 25 kwietnia 2012
WYSOKOŚĆ
KĄT NACHYLENIA DACHU
POWIERZCHNIA DACHU
LICZBA POKOI
69,70 m2
-
87,80 m2
338 m3
-
40 st.
141,3 m2
3
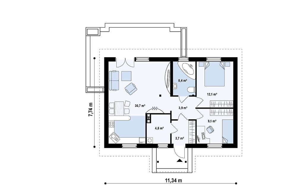
DOM Z12
PARTER 69,70 m2
HOL
POM. GOSPODARCZE
SALON + KUCHNIA
SIEŃ
SYPIALNIA
SYPIALNIA
ŁAZIENKA
3,70 m2
4,80 m2
30,70 m2
3,70 m2
12,10 m2
9,10 m2
5,40 m2
DOM Z12
MINIMALNE WYMIARY DZIAŁKI
SZEROKOŚĆ
DŁUGOŚĆ
WYMIARY ELEWACJI FRONTOWEJ
17,34 m
15,74 m
11,34m
WYJAŚNIENIE POJĘĆ
Powierzchnia użytkowa
Powierzchnia wszystkich pomieszczeń z włączeniem pomieszczenia technicznego, garażu, pomieszczenia gospodarczego, strychu. Przy obmiarach nie uwzględnia się tyków i okładzin ściennych.
Powierzchnia netto
Jest to powierzchnia wszystkich pomieszczeń budynku mierzona w poziomie podłogi z uwzględnieniem tynków i okładzin ścian. Nie pomniejsza się powierzchni pomieszczeń o zmiennej wysokości – np. na poddaszu. Prościej mówiąc to tak jakby rozłożyć we wszystkich pomieszczeniach wykładzinę.
Powierzchnia zabudowy
Jest to powierzchnia obrysu ścian zewnętrznych budynku (parteru). Do powierzchni zabudowy nie wlicza się: podziemnych części budynku, pochylni samochodowych, schodów zewnętrznych, ganków, daszków nad wejściem, galerii oraz wszystkich nadwieszeń kondygnacji. Uwzględnia się np. ogrody zimowe lub inne elementy przybudowane.
Kubatura:
Objętość pomieszczeń, czyli powierzchnia pomieszczeń pomnożona przez wysokość danej kondygnacji. Do obliczenia kubatury przyjęliśmy wysokość liczoną od podłogi do spodu stropu lub do spodu stropodachu.
Liczna pokoiLiczba pokoi z wyłączeniem pomieszczeń gospodarczych i technicznych.
Powierzchnia dachu
Łączna powierzchnia dachu z wyłączeniem okien dachowych.
DOMY PARTEROWE
W TECHNOLOGII SZKIELETOWEJ
WARSKOP
Przedsiębiorstwo Budowlane
Janusz Stokłosa
02-777 Warszawa
ul. Strzeleckiego 2/18
www.warskop.pl
(22) 643 38 14
501 827 318
506 585 855
NIP: 5210321397
REGON: 012038594
WARSKOP.PL