Z7D
83m2
DOM Z7D
DANE TECHNICZNE
DOM PARTEROWY
POWIERZCHNIA UŻYTKOWA / NETTO
POWIERZCHNIA GARAŻU
POWIERZCHNIA ZABUDOWY
KUBATURA
Powierzchnia użytkowa liczona zgodnie z rozporządzeniem ministra z dnia 25 kwietnia 2012
WYSOKOŚĆ
KĄT NACHYLENIA DACHU
POWIERZCHNIA DACHU
LICZBA POKOI
83,4 m2
-
96,2 m2
233,4 m3
5,46 m
22 st.
142,33 m2
4
Z7D
83m2
DOM Z7D
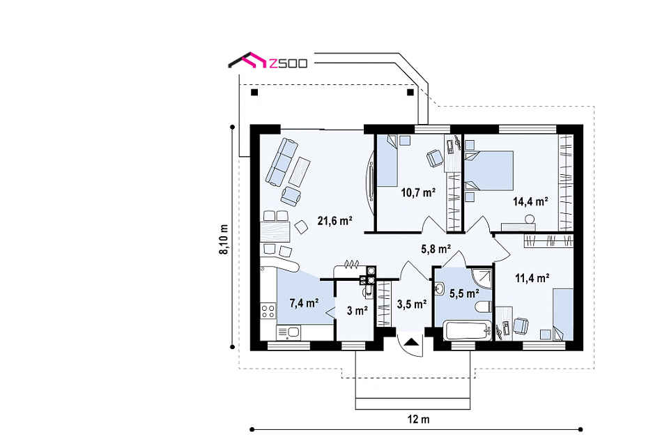
PARTER 83,4 m2
SIEŃ
HOL
KUCHNIA
POM. GOSPODARCZE
SALON + JADALNIA
POKÓJ
POKÓJ
POKÓJ
ŁAZIENKA
3,5 m2
5,8 m2
7,4 m2
3,0 m2
21,6 m2
11,4 m2
14,4 m2
10,7m2
5,5 m2
Z7D
83m2
DOM Z7D
PODDASZE OPCJONALNIE
PODDASZE OPCJONALNIE - OZNACZA TO, ŻE W DANYM
PROJEKCIE ISTNIEJE MOŻLIWOŚĆ ZAADAPTOWANIA KONDYGNACJI NAD STROPEM NA POWIERZCHNIĘ MIESZKALNĄ, UŻYTKOWĄ LUB STRYCH W ZALEŻNOŚCI OD OSTATECZNEGO PRZEZNACZENIA PRZESTRZENI POD DACHEM.
ZAADAPTOWANIE KONDYGNACJI WYMAGA KAŻDORAZOWO NANIESIENIA NA PROJEKT NIEZBĘDNYCH MODYFIKACJI: KONSTRUKCYJNYCH, ARCHITEKTONICZNYCH ORAZ INSTALACYJNYCH, KTÓRE NALEŻY PRZEPROWADZIĆ NA ETAPIE ADAPTACJI PROJEKTU DO DZIAŁKI PRZEZ OSOBY UPRAWNIONE.
Z7D
83m2
DOM Z131D
MINIMALNE WYMIARY DZIAŁKI
SZEROKOŚĆ
DŁUGOŚĆ
WYMIARY ELEWACJI FRONTOWEJ
18 m
16,1 m
12 m
WYJAŚNIENIE POJĘĆ
Powierzchnia użytkowa
Powierzchnia wszystkich pomieszczeń z włączeniem pomieszczenia technicznego, garażu, pomieszczenia gospodarczego, strychu. Przy obmiarach nie uwzględnia się tyków i okładzin ściennych.
Powierzchnia netto
Jest to powierzchnia wszystkich pomieszczeń budynku mierzona w poziomie podłogi z uwzględnieniem tynków i okładzin ścian. Nie pomniejsza się powierzchni pomieszczeń o zmiennej wysokości – np. na poddaszu. Prościej mówiąc to tak jakby rozłożyć we wszystkich pomieszczeniach wykładzinę.
Powierzchnia zabudowy
Jest to powierzchnia obrysu ścian zewnętrznych budynku (parteru). Do powierzchni zabudowy nie wlicza się: podziemnych części budynku, pochylni samochodowych, schodów zewnętrznych, ganków, daszków nad wejściem, galerii oraz wszystkich nadwieszeń kondygnacji. Uwzględnia się np. ogrody zimowe lub inne elementy przybudowane.
Kubatura:
Objętość pomieszczeń, czyli powierzchnia pomieszczeń pomnożona przez wysokość danej kondygnacji. Do obliczenia kubatury przyjęliśmy wysokość liczoną od podłogi do spodu stropu lub do spodu stropodachu.
Liczna pokoiLiczba pokoi z wyłączeniem pomieszczeń gospodarczych i technicznych.
Powierzchnia dachu
Łączna powierzchnia dachu z wyłączeniem okien dachowych.
501 827 318
506 585 855
(22) 643 38 14
www.warskop.pl
02-777 Warszawa
ul. Strzeleckiego 2/18
Przedsiębiorstwo Budowlane
Janusz Stokłosa
NIP: 5210321397
REGON: 012038594
strony www robertkurkowski.com 888 999 620